Appartement 2 chambres Les Allues
3 Pièces Duplex
Les locataires apprécient :
- Ascenseur
- Terrasse
- Proximité Ecole de ski
- Départ ski aux pieds
Description Générale
- Appartement - 43m²
- 2 chambres
- 6 personnes
- Enfants bienvenus
- Ascenseur
- Exterieur, Balcon, Terrasse
- Wifi
- Animaux non acceptés
Couchages et Salles de bain
- 6 couchages
- 1 lit double
- 6 lits simples
- 2 salles de bain
Cuisine équipée
- Machine à café
- Grille pain
- Cafetière
- Four
- Four micro-ondes
- Plaques de cuisson
- Lave vaisselle
- Bouilloire
Confort et loisirs
- Table de jardin
- Télévision
Le mot du propriétaire Galina
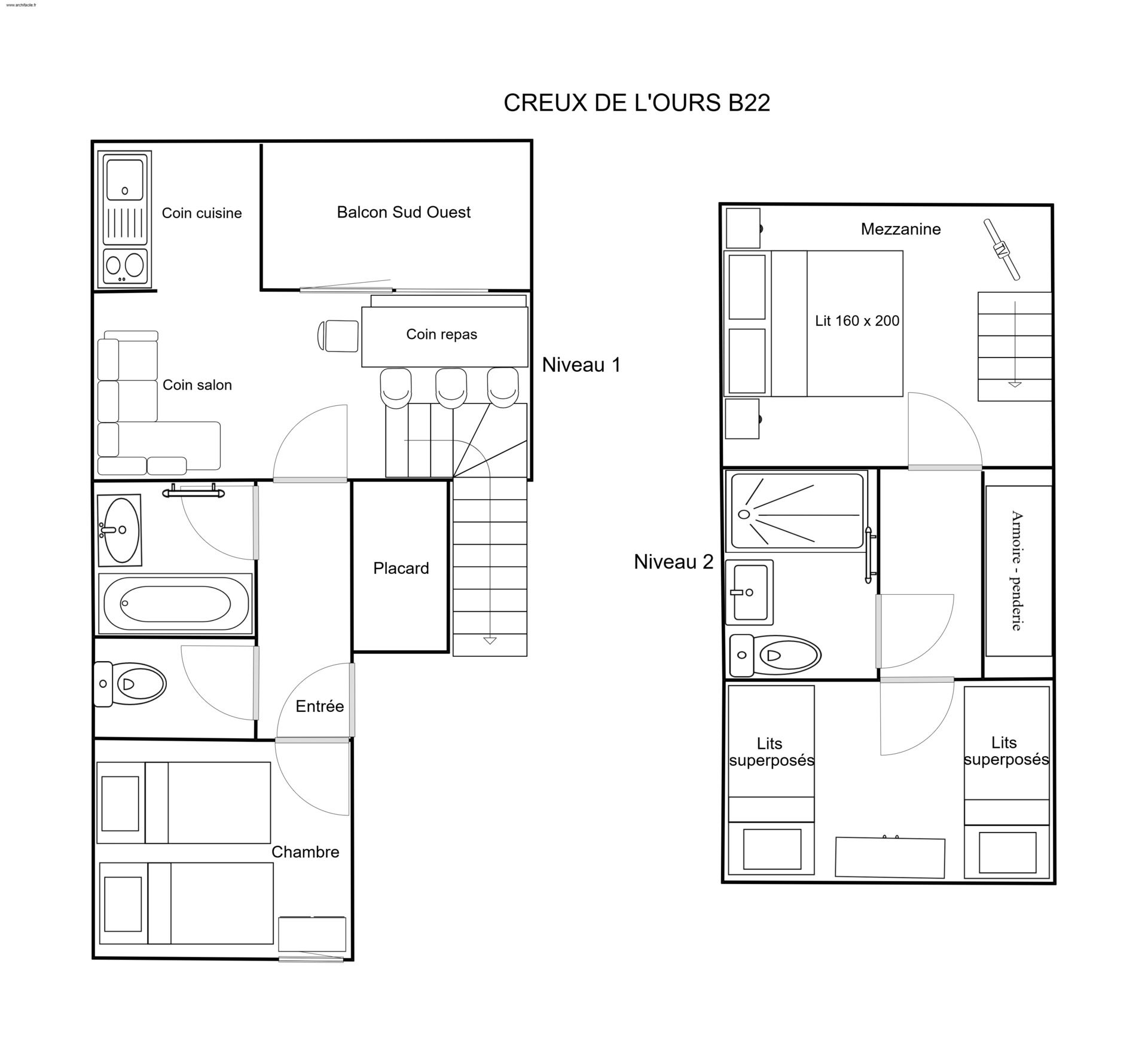
RESIDENCE LE CREUX DE L'OURS B22 - Type G2
Classement 2* pour 6 personnes
3 Pièces Duplex, 5/6 personnes, 43m² pondérés, Balcon Sud-Ouest, 4ème Etage
Séjour : canapé (sans couchages) et coin repas
Cuisine ouverte : four combiné micro-ondes grill, frigidaire, lave-vaisselle, 3 plaques vitro-céramiques, cafetière à filtre, grille-pain, bouilloire
Chambre : 2 lits simples (80x190)
Salle de bain - Toilettes séparées
Etage
Mezzanine avec vélux : 1 lit double (160x200), télévision
Chambre : 2 ensembles de lits superposés (80x 200 et 1 de 80x190)
1 salle de douche avec toilettes
Télévision écran plat incluse dans le séjour et la mezzanine
NON-FUMEUR - ANIMAUX INTERDITS
Connexion Wi-Fi gratuite dépendante de la résidence - connexion non garantie - débit limité
Environnement
- Gare : 24km
- Centre village / ville : 0.7km
- Spot de surf : 0.01km
- Lac : 2.4km
Activités aux alentours
- Ecole de ski : 0.75km
- Pistes de ski : 0.01km
- Horaires
-
Arrivée 16:00
Départ 10:00 - Annulation
- Conditions d'annulation
- Paiement
- 30% à la réservation
Solde 30 jours avant - Caution
- 500€

